The Healing Children, George Hospital Re-Development Project
George Hospital is fortunate to have a team of highly skilled and dedicated paediatric doctors and nurses. However, the current paediatric and neonatal facilities have become inadequate for the number of patients requiring treatment.
This is putting enormous pressure on the hospital to maintain their high standards in the face of the continuing population growth. It is further compounded by the fact that the distance from Cape Town is some 450 km from George and the George hospital therefore provides a quantum of tertiary services that would not usually be managed in a regional (Level 2) facility.
Today the population is increasing rapidly with the influx of a large number of patients from the Eastern Cape and other African countries such as Namibia, Ghana, Somalia, Mozambique, Angola, Zimbabwe, etc. The demand for health care for the indigent is high, many of whom have young children requiring paediatric care.
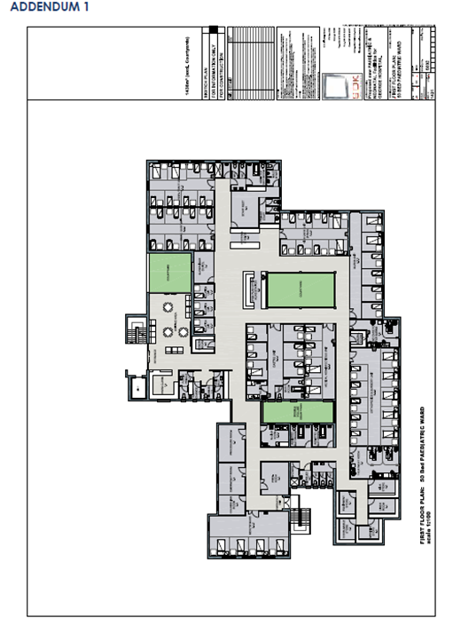
It is proposed that a new Paediatric facility be built which will house the following:
- Paediatric Outpatient Department (POPD) with adequate counselling and treatment facilities.
- 56 bed children’s ward, with recliner for parents next to the bed.
- Dedicated play areas and outside courtyard.
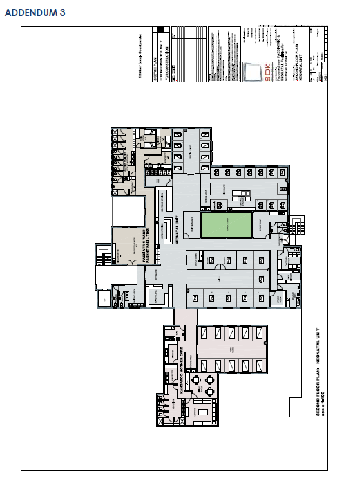
- A purpose built parent facility, including limited overnight accommodation.
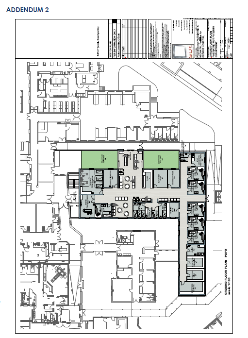
In providing the additional re-development for the Paediatric unit, space will be created from the old ward for much needed expansion of the Oncology unit.
The costs of the planned re-development will require funding for the main building as well as additional medical equipment together with furniture and fittings for the new unit.


The professionally drawn-up architectural representation for the new proposed pediatric ward. Used for illustration and planning purposes.


